- 47447 Moers
- Wohnfläche135,0 m²
- Grundstück 270,0 m²
- Anzahl Zimmer 5,0
- Objektnummer A214
Objektbeschreibung
Objekttitel
Hier ist familiengerechtes Wohnen angesagt.
Lage
Das Wohngebiet Stockrahmsfeld entstand zwischen 1998 und 2002.
Es besteht vorwiegend aus Ein- und Zweifamilienhäusern als Doppel- und Zeilenhäusern in 2 geschossiger Bauweise.
Das Haus liegt am Ende einer Anliegerstraße - Spielstraße - in ruhiger aber verkehrsgünstiger Lage.
Einkaufsmöglichkeiten für den täglichen Bedarf sowie Schulen und Kindergärten liegen im unmittelbaren Umfeld.
Die Anbindung an örtliche Hauptverkehrsstraßen sowie überregionale Verkehrswege ist als günstig zu bezeichnen:
Haltestellen des öffentlichen Nahverkehrs Linie 10, 052 und 224
Entfernung zum Ortsteilzentrum Kapellen ca. 1,5 km zum Stadtzentrum Moers ca. 6 km
Von Moers ist Duisburg, Krefeld in ca. 20 Minuten und Düsseldorf, Essen in ca. 40 Min. über die A40, A42 A57 zu erreichen.
Objektbeschreibung
Das Haus ist bestens für eine Familie mit Kindern geeignet.
Im Erdgeschoss findet "das Leben" statt: kochen, essen, wohnen
Grillen auf der Terrasse oder ganz einfach nur ausruhen im Garten
Im Obergeschoss befinden sich 3 zimmer und ein Bad
Das Studio ist ausgebaut - hier kann "die Jugend" ihr eigenes Reich mit eigenem Duschbad genießen.
Das Haus ist nicht unterkellert - ersatzweise befindet sich im Dachgeschoss ein großzügiger Hauswirtschaftsraum, der Platz zum waschen und bügeln bietet.
Der technische und optische Zustand ist gut. So wie sich das für ein junges Haus gehört.
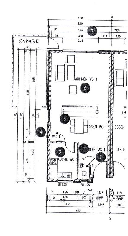
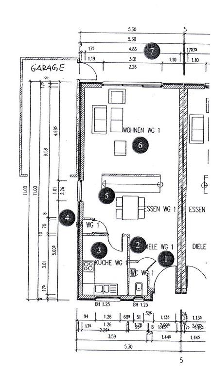
Wohn- Essbereich, 4 Schlafräume, Küche, 2 Bäder, G-WC.
Alles in allem 135 m² gut aufgeteilte Wohnfläche.
Heizung: Fußbodenheizung Gaszentralheizungsanlage mit Warmwasseraufbereitung - Gastherme im DG
Energiepass
- Energieausweis ist in Bearbeitung
Kontaktperson
- Name
- Sabine Ortmann
- Strasse
- Bismarckstraße
- Hausnummer
- 49
- PLZ
- 47799
- Email Direkt
- info@ortmann-immobilien.com
- Telefon Durchwahl
- (02151) 5350697
Objektanfrage
Immobiliendetails
- Objektnummer
- A214
- Vermarktung
- Kauf
- Objektart
- Haus, Doppelhaushälfte
Flächen
- Wohnfläche
- 135,0 m²
- Grundstücksfläche
- 270,0 m²
- Anzahl Zimmer
- 5,0
Zustand
- Baujahr
- 2000














