- 41749 Viersen
- Kaltmiete1.200,00 €
- Warmmiete1.550,00 €
- Nebenkosten350,00 €
- Kaution3.600,00 €
- Wohnfläche121,5 m²
- Anzahl Zimmer 2,0
- Objektnummer A758
Objektbeschreibung
Objekttitel
++ V E R M I E T E T ++ LOFT-WOHNUNG mit historischem Flair
Lage
Der ganze Charme des Niederrheins ...
Wer in Süchteln wohnt, lebt in der Balance zwischen freier Natur und ausgezeichneter Infrastruktur.
Süchteln ist mit seinen knapp 16.000 Einwohnern der nördlichste Stadtteil von Viersen, der unmittelbar an die Süchtelner Höhen und den einzigartigen Naturpark Schwalm-Nette anschließt.
Die Süchtelner Höhen bieten viele Möglichkeiten für Bewegung und Erholung, egal ob Mountainbike, Reiten oder Wandern.
Ein Biergarten, ein Rasenplatz und ein Klettergarten gehören ebenso dazu. Hier liegt auch das Wahrzeichen Süchtelns: die Irmgardis Kapelle.
Süchteln selbst lockt mit einer beschaulichen Innenstadt und seinem niederrheinischen Charme und bietet dabei alle Einkaufsmöglichkeiten des täglichen Bedarfs.
Ausstatt_beschr
Das Gebäude ist in der Denkmalliste aufgeführt und befindet sich inmitten des LVR-Parks in Süchteln.
Die Wohnung bietet eine moderne, hochwertige Ausstattung und einen zeitgemäßen Grundriss.
Aufzug
barrierearm
bodengleiche Dusche
geschmackvolle Ausstattung:
dunkelgraue Bodenfliesen im Badezimmer und in der Küche
Wohnräume Echtholz Parkett Bodenbelag
Decken und Wände Fliestapete und weiß gestrichen
Mieter Keller (ca. 9,3 m²)
gemeinschaftlich genutzter Fahrradkeller und Wasch- und Trockenkeller
Parken können Sie in unmittelbarer Nähe des Gebäudes
Die monatliche Miete des Stellplatzes beträgt 50,-EUR
Keine Energieausweispflicht, da Denkmalschutz
Die Energieversorgung erfolgt über das Nahwärmenetz
Objektbeschreibung
Zuhause sein, wo andere Urlaub machen ...
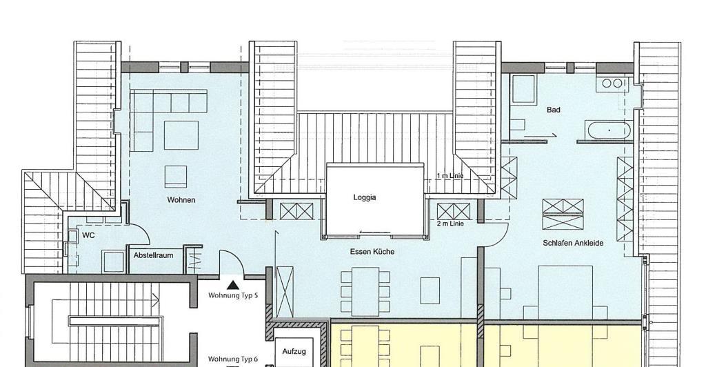
Diese schicke, moderne LOFT-Wohnung liegt im Dachgeschoss und ist bequem mit dem Aufzug zu erreichen.
Ein junges, offenes Raumkonzept - große Zimmer & hohe Decken
Die Wohnung ist klar strukturiert in einen OFFENEN WOHNBEREICH und die WOHNKÜCHE mit Loggia und einen "privaten Bereich" (Schlafbereich mit Bad en suite).
- großzügiger Wohnbereich mit angrenzendem Gäste-WC.
- Wohnküche mit Loggia die erholsame Blicke in die grüne Umgebung bietet
- Schlafen, Ankleide mit Bad en-suite (Doppel-Waschtisch, WC, Badewanne und Dusche bodengleich)
Bei dem Gebäude handelt es sich um ein Denkmal (Baujahr ca. 1904)
erstellt im Pavillonstil und geplant vom Architekten Paul Hirschhorn.
Das gesamte Gebäude wurde 2021/2022 kernsaniert.
Sonstige_angaben
Alles klingt sehr interessant?
Gut, dann sollten wir miteinander telefonieren.
Gern ermöglichen wir auch eine Besichtigung, damit Sie überprüfen können, ob das Bild, das Sie sich gemacht haben stimmt!
Die mir zur Verfügung gestellten Unterlagen und Angaben des Eigentümers dienten zur Erstellung dieses Exposés. Ich bitte um Verständnis, dass ich trotz sorgfältiger Prüfung, keine Gewähr für deren Richtigkeit übernehmen kann.
LIEBE MIETINTERESSENTEN: Wenn Sie uns eine E-Mail-Anfrage senden, möchten wir Sie bitten, uns Ihren Namen sowie eine Telefonnummer mitzuteilen. Danke!
Ausstattung
- Bad
- Dusche
- Bodenart
- Fliesen, Parkett
- Heizungsart
- Fernwärme
- Stellplatzart
- Außenstellplatz
- Ausrichtung Balkon/ Terrasse
- Ost
- Kabel/SAT TV
- Unterkellert
- Keller
- Abstellraum
Energiepass
- Energieausweis ist in Bearbeitung
Kontaktperson
- Firma
- ORTMANN IMMOBILIEN
- Name
- Frau Dipl. Ing. Sabine Ortmann
- Strasse
- Bismarckstraße
- Hausnummer
- 49
- PLZ
- 47799
- Email Direkt
- info@ortmann-immobilien.com
Objektanfrage
Immobiliendetails
- Objektnummer
- A758
- Vermarktung
- Miete
- Objektart
- Wohnung, Dachgeschoss
Kosten
- Kaltmiete
- 1.200,00 €
- Warmmiete
- 1.550,00 €
- Nebenkosten
- 350,00 €
- Kaution
- 3.600,00 €
Flächen
- Wohnfläche
- 121,5 m²
- Kellerfläche
- 9,3 m²
- Anzahl Zimmer
- 2,0
- Anzahl Schlafzimmer
- 1,0
- Anzahl Badezimmer
- 1,0
- Gäste-WC
- 1,0
- Anzahl Stellplätze
- 1,0
- Anzahl Terrassen
- 1,0
Zustand
- Baujahr
- 2021
- Zustand
- Neuwertig
- Frei ab
- nach Vereinbarung













