- 47839 Krefeld
- Kaufpreis605.000,00 €
- Provision3,57 % v. Netto-VKPreis (inkl. MwSt) inkl. MwSt.
- Wohnfläche435,0 m²
- Grundstück 528,0 m²
- Anzahl Zimmer 21,0
- Objektnummer A761
Objektbeschreibung
Objekttitel
Wohnhaus mit großem Entwicklungspotenzial
Lage
In einer ruhigen Seitenstraße, nur einen Steinwurf vom Hülser Zentrum entfernt, befindet sich diese Immobilie auf einem 528 m² großen Grundstück.
Das Grundstück ist verkehrstechnisch gut angebunden und befindet sich in einer ruhigen Wohngegend mit gepflegter Nachbarbebauung.
Hüls verfügt über Kindergärten, mehrere Grundschulen sowie eine weiterführende Schule und hat zudem ein eigenes Krankenhaus.
Als nördlichster Stadtteil Krefelds liegt Hüls westlich zur Stadt Kempen.
Durch seine Geschichte als ehemals eigenständige Gemeinde hat Hüls ein kleines, florierendes Stadtzentrum mit vielen Geschäften und einem Wochenmarkt.
Die Umgebung bietet zahlreiche Ausflugs- und Erholungsmöglichkeiten:
Der Hülser Berg mit seinem 107 m hohen Aussichtsturm und der Hülser Bruch, eine typisch niederrheinische Landschaft, laden zum Spazierengehen, Joggen oder Radfahren ein.
Der Standort Krefeld-Hüls ist durch seine sehr gute Anbindung an die Autobahnen A44/A57 besonders attraktiv.
Ausstatt_beschr
Das Gebäude mit großem Entwicklungspotenzial, kann mit KFW-Mitteln mit bis zu 35% Tilgungszuschuss auf den heutigen Standart nach Gebäudeenergiegesetz ertüchtigt werden.
Vorbehaltlich, dass die Förderrichtlinien bis zur Baugenehmigung nicht geändert werden.
Objektbeschreibung
Ein spannendes Projekt für Investoren, Bauträger oder private Bauherren, die ein Gebäude auf den neusten energetischen und architektonischen Stand bringen möchten.
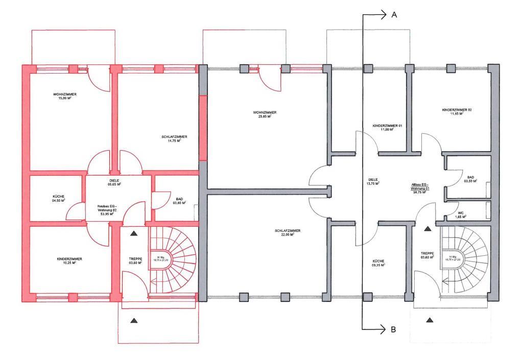
Aktuell bietet das voll unterkellerte Haus zwei separate Einheiten mit jeweils ca. 100 m² Wohnfläche.
Es wird ein Bauantrag eingereicht, der eine Aufstockung und Erweiterung vorsieht.
Geplant sind 8 Wohneinheiten mit einer Nutzfläche / Verkehrsfläche von ca. 577 m²
Erdgeschoss
Wohneinheit 1:
4 Zimmer, Küche, Diele, Bad, Gäste WC (ca. 100 m²) mit Gartenanteil
Wohneinheit 2:
3 Zimmer, Küche, Diele, Bad (ca. 54 m²) mit Gartenanteil
Obergeschoss
Wohneinheit 3:
2 Zimmer, Küche, Diele, Bad, Abstellraum, Balkon (ca. 55 m²)
Wohneinheit 4:
2 Zimmer, Küche, Diele, Bad, Balkon (ca. 47 m²)
Wohneinheit 5:
3 Zimmer, Küche, Diele, Bad, Balkon (ca. 55 m²)
Dachgeschoss
Wohneinheit 6:
2 Zimmer, Küche, Diele, Bad, Abstellraum (ca. 36 m²)
Wohneinheit 7:
2 Zimmer, Küche, Diele, Bad (ca. 33 m²)
Wohneinheit 8:
3 Zimmer, Küche, diele, Bad (ca. 40 m²)
Sonstige_angaben
Alles klingt sehr interessant?
Gut, dann sollten wir miteinander telefonieren.
LIEBE KAUFINTERESSENTEN: Wenn Sie uns eine E-Mail-Anfrage senden, möchten wir Sie bitten, uns Ihren Namen, Ihre vollständige Anschrift sowie eine Telefonnummer mitzuteilen. Danke!
Ausstattung
- Heizungsart
- Zentral
- Befeuerung
- Gas
Energiepass
- Energieausweistyp
- Bedarfsausweis
- Gültig bis
- Ab dem 01.05.2014
- Energiebedarf
- 160,00
- Energieträger
- Gas
- Energieeffizienzklasse
- F
- Baujahr
- 1969
Kontaktperson
- Name
- Sabine Ortmann
- Strasse
- Bismarckstraße
- Hausnummer
- 49
- PLZ
- 47799
- Email Direkt
- info@ortmann-immobilien.com
- Telefon Durchwahl
- (02151) 5350697
Objektanfrage
Immobiliendetails
- Objektnummer
- A761
- Vermarktung
- Kauf
- Objektart
- Haus, MEHRFAMILIENHAUS
Kosten
- Kaufpreis
- 605.000,00 €
- Provision
- 3,57 % v. Netto-VKPreis (inkl. MwSt) inkl. MwSt.
Flächen
- Wohnfläche
- 435,0 m²
- Nutzfläche
- 142,0 m²
- Grundstücksfläche
- 528,0 m²
- Gesamtfläche
- 577,0 m²
- Anzahl Zimmer
- 21,0
Zustand
- Baujahr
- 1969
- Frei ab
- nach Vereinbarung












